Para clientes directos.
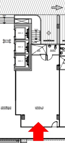
Cómodo local de 99m2, en mezanine, con acceso directo a los estacionamientos.
En plaza comercial, frente a calle.
Plaza Comercial con Seguridad y Estacionamientos para clientes
Local comercial de 99m2, con AC, baño, todo en un solo nivel.
Costo de Mantenimiento de PH de $247.50 mensual